瑧爾
樓盤信息
配套設施
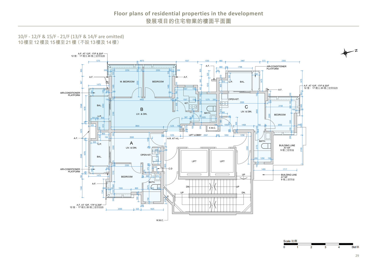
平面圖則
戶型圖則
售樓說明書
常見問題
預約參觀
平面圖則
了解整個項目的布局設計・Austin Bohemian生活方式
‹
›
×
‹
›